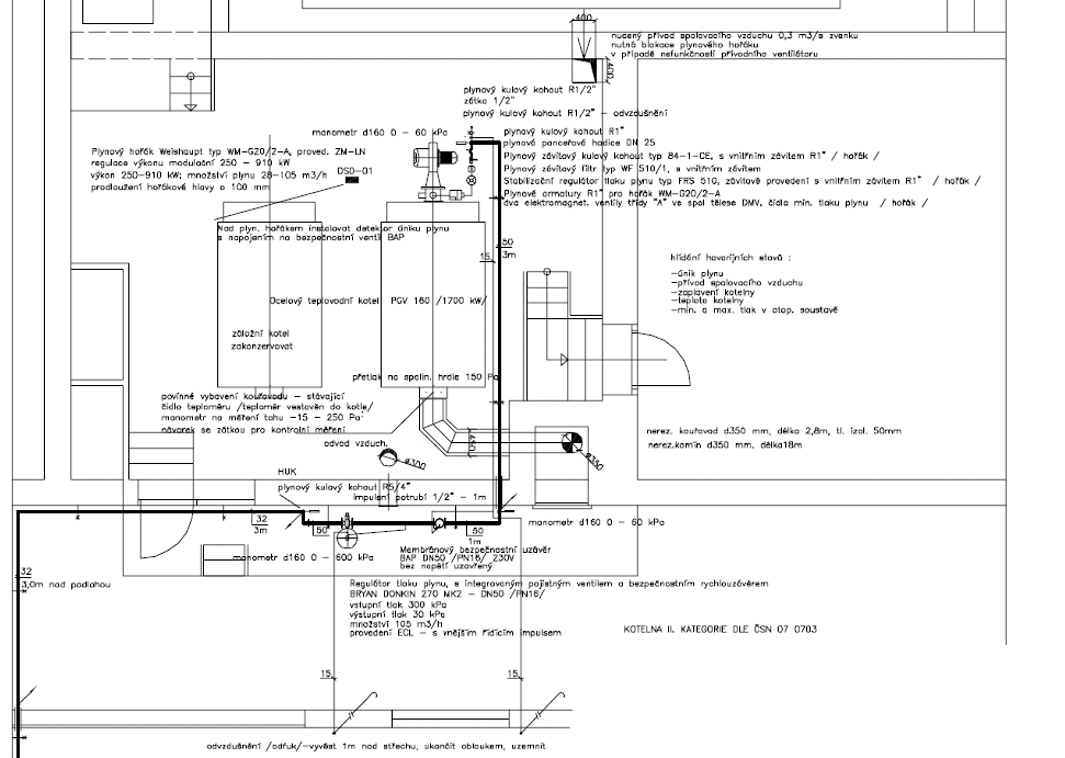
Plynová přípojka pro areál, plynofikace stávajícího kotle při přechodu z LTO na ZP. Výkon 1,7 MW
Palivem pro dvojici ocelových teplovodních kotlů bylo LTO a investor se rozhodl k přechodu na zemní plyn. Projekt řešil plynovou přípojku a plynofikaci kotelny, včetně nezbytné výměny plynového hořáku. Olejové hospodářství ale rušeno zcela nebylo a druhý
Investor: PONAS s.r.o.
Stupeň: DSP, DPS
Investice: 0,7 mil. Kč
Rok: 2007




